Learn More About Buying at Our Monthly Homebuyer Class & Workshop @ HumBuyer.com

Video Tour

About this Home

10-acre retreat where space, character, and nature come together in a truly special setting. This expansive home offers a flexible open floor plan with living areas upstairs and downstairs - designed for both everyday comfort and effortless entertaining.

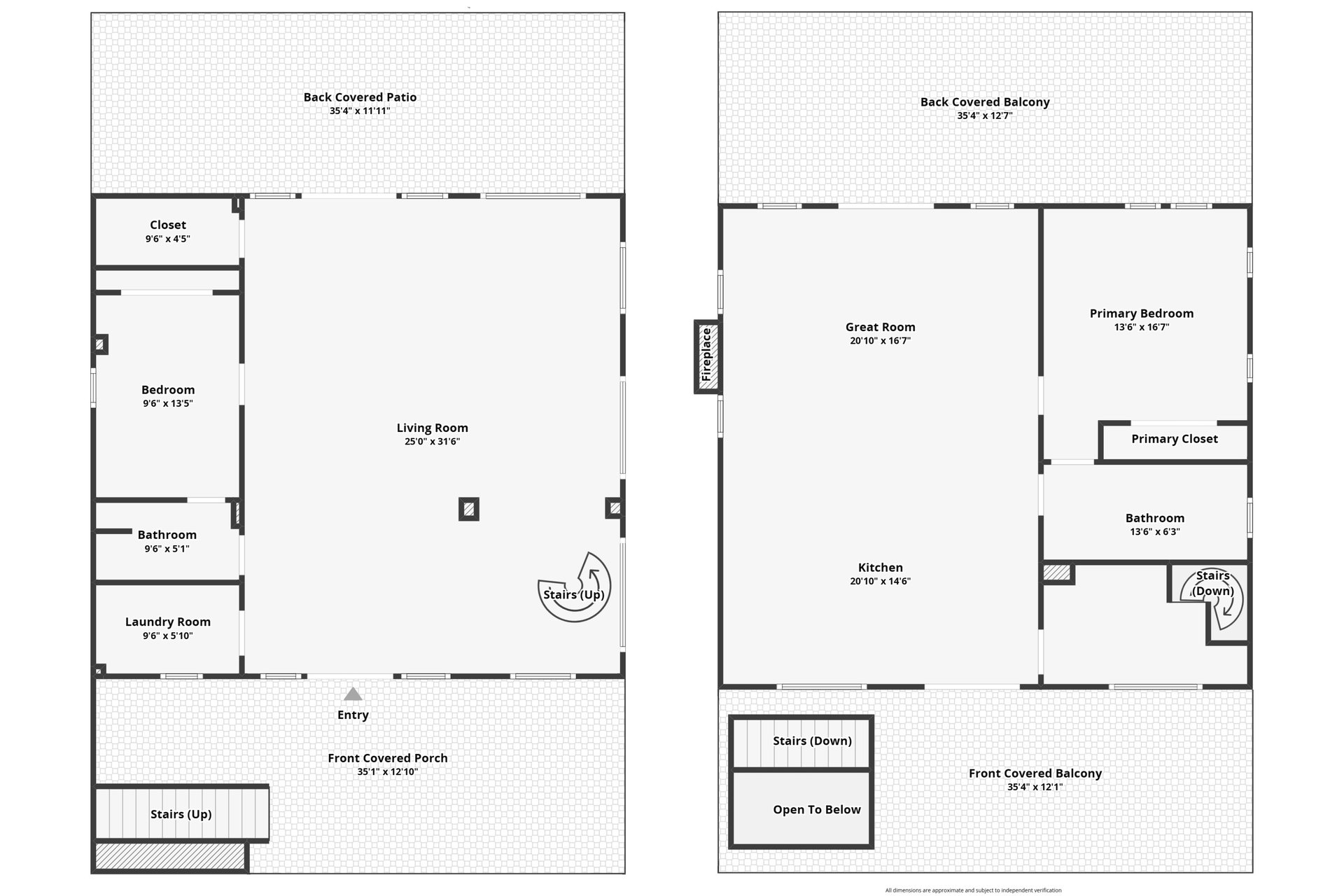
The property includes gated driveway access just to the right of the spring-fed creek that runs across the north end of the lot. There are also several detached buildings with power - a storage shed, tack room, and a barn - all offering exceptional flexibility for hobbies, storage, or horses. The main floor upstairs has warm hardwood floors throughout and vaulted ceilings. The kitchen is home to stone countertops, an abundance of cabinetry, a central island with prep sink, and a long bar top. The living area boasts a wood-burning fireplace and exterior doors lead to roomy, covered decks with natural pine tongue and groove ceilings for elevated panoramic views of the property.  

The generously sized primary bedroom features a live-edge barn door, exposed wood beams, and serene views. The bathrooms showcase a blend of modern finishes and playful design elements that add charm and character. The formal and informal living areas are connected by a spiral staircase (that can be updated to an elevator). The lower level has sealed concrete floors, sprawling windows, walk-in closets, a utility room, and a second bedroom suite with full bath.

This home offers privacy, charm, and endless potential in a unique Tallahassee setting. A rare opportunity for those seeking space, character, and a strong connection to nature.  Water Heater 2025, Roof 2020, HVAC 2019, Barn 2014.

3D Virtual Tour

Floorplans

 

Approximate Lot Dimensions: 784' x 520' x 694' x 622'

Photo Gallery

13050 Forest Run Court

Tallahassee, Florida 32317

Get Directions

Additional Information

Mortgage Calculator

Estimate your monthly mortgage payment, including the principal and interest, property taxes, and HOA. Adjust the values to generate a more accurate rate.

All estimates are provided for informational purposes only. Actual amounts may vary.
$0,000 Your Payment 20 15 65
$0,000 Your Payment

Schedule a Showing or Meeting

If you're not already working with a real estate agent, and are pre-approved, schedule a showing now:

If you're not already working with a real estate agent, and need more information on getting pre-approved:

blue house with interior lights on for a glowing sunset photo

Listing Alerts

Find out the moment a home within your search parameters hits the market - including "Coming Soon" homes which don't feed over to real estate search websites!

kelly chavers real estate agent at hum real estate in tallahassee florida

Kelly Chavers

Founder | Realtor®

I understand that selling or buying a home can be a life-changing adventure, so I make sure you are informed, confident, and excited about your real estate choices. By creating unforgettable real estate experiences, my goal is to build a lifelong relationship so I can serve you and yours for years to come.

Follow Us on Instagram

* Brokerage commissions are not set by law and are fully negotiable. They are payable, if contractually obligated, to the buyer’s Broker upon closing.